THE PERFECT PLACE TO BUILD YOUR DREAM HOME!

An opportunity to secure 2.5 acres (1.01 ha) of fully cleared land with DA approval to built a two storey home with potential ocean glimpses. The property has a partially completed one bedroom plus study shed with electricity connected and a 27,000 litre water tank. The land offers an ideal lifestyle for any person with a green thumb. 

Property features include: 

  • 2.5 acre (1.01ha) elevated south west sloping block.
  • Partially completed one bedroom plus study shed. 
  • Electricity & gas connected. 
  • 27,000 litre water tank.
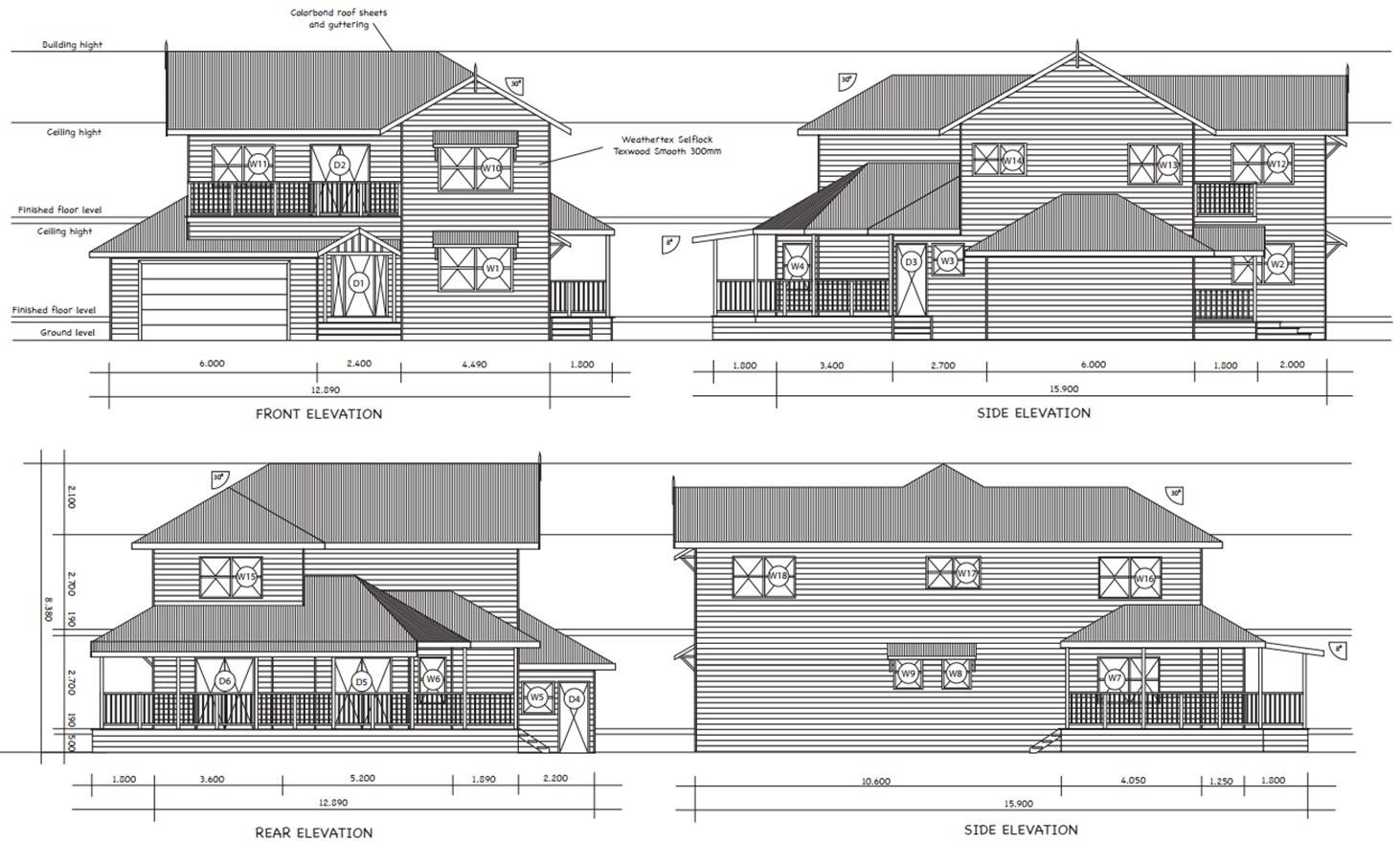
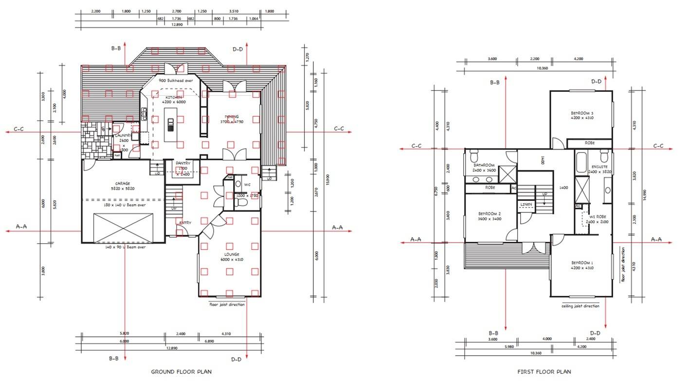
  • House plans completed and ready to build Development Application valid until February 2022. 
  • Septic system installed.
  • Access with fully sealed road.
  • Approximately 5 minutes to Coffs Harbour CBD and beaches.
  • Rates: $1,673.80 p.a.

The fast growing regional city of Coffs Harbour is within 5 minutes with a thriving university, airport and extensive retail and tourism amenities. With substantial views in a central location this property will not last long.

 

We have obtained all information in this document from sources we believe to be reliable, however, we cannot guarantee its accuracy. Prospective buyers are advised to carry out their own investigations.

1 1 1 1.01 ha
Address 122E Old Coast Rd, Korora
Price SOLD
Property Type Residential
Property ID 231
Category House
Land Area 1.01 ha

Agent Details

Jesse Stanton photo

Jesse Stanton

0432 187 075
View Profile